Lage:
Im Predigtstuhl Resort in Sankt Englmar, in einer Ferienanlage, in einer Höhe von ca. 880 Hm, absolut ruhig und sehr sonnig gelegen, umgeben von Natur, befindet sich diese Ferienwohnung. Sankt Englmar bietet sehr viele Freizeitmöglichkeiten, z. B. Ski Alpin und Snowboard am Pröller Skidreieck Sankt Englmar, gespurte Loipen, Waldwipfelweg, Sommerrodelbahn, Natur- und Freizeitpark Edelwies, Pferdereiten, Skischule, E-Bike- und Skiverleih, ausgebaute Rad- und Wanderwege. In der näheren Umgebung befinden sich der Predigtstuhl mit ca. 1.024 Hm, der Knogl mit ca. 1.056 Hm und der Hochberg mit ca. 1.025 Hm. Einkaufsmöglichkeiten und öffentliche Einrichtungen in Sankt Englmar. Die Stadt Viechtach ist ca. 11 km, die Stadt Bogen ca. 21 km und die Kreis- und Gäubodenstadt Straubing ca. 32 km entfernt. Guter BAB-Anschluss zur A3 in Schwarzach oder Bogen. Gute Busverbindung. Bahnanschluss in Straubing.
Gebäude:
Die Eigentumswohnung / Ferienwohnung befindet sich in der Appartementanlage Sankt Englmar im EG und 1. OG, die 1972 in Massivbauweise erstellt wurde und sich in einem sehr guten Bauzustand befindet. Das Ferienappartement ist voll eingerichtet und kann sofort übernommen werden. Die Einrichtung inkl. Einbauküche (Kühlschrank, Waschbecken, kleiner E-Herd), Essplatz, Wohnbereich mit TV, Doppelbett, Kinderbetten und Arbeitsecke ist im Kaufpreis inbegriffen.
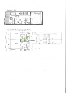
Aufteilung:
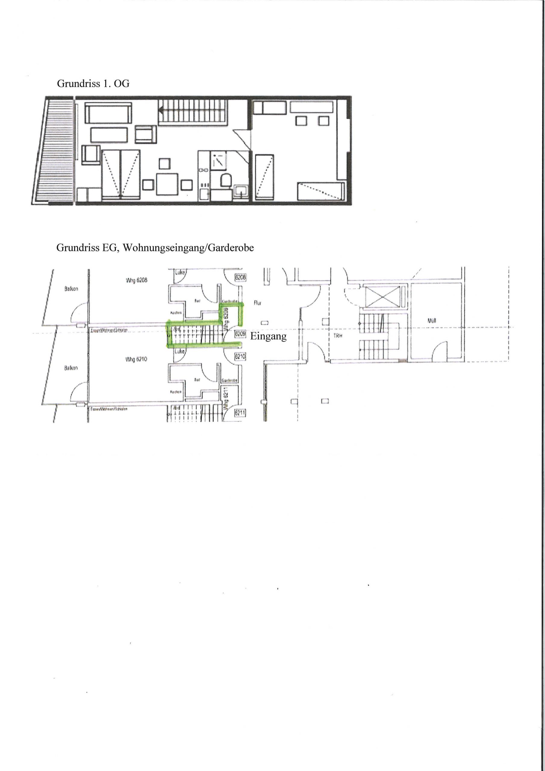
EG.: Wohnungseingang mit Garderobe, Treppenaufgang mit Geländer und Kindersicherung.
1. OG.: Kochen mit Einbauküche/Essen/Wohnen/Schlafen mit Westbalkon, Flur, separates Schlafzimmer mit 3 Betten und Fenster Richtung Osten, Dusche/WC/Waschgelegenheit/Föhn/Schminkspiegel.
Die Wohnfläche beträgt ca. 53 m².
Im Ferienappartement befinden sich insgesamt 6 Schlafmöglichkeiten.
Zur Mitbenutzung befinden sich in der Ferienanlage ein Hallenbad, Freibad mit Liegewiese, Sauna, Fitnessraum, Skiraum, Spielplatz, Tischtennisanlage, Kids Club und weitere Sport- und Freizeitmöglichkeiten.
Ein Restaurant und ein Supermarkt in unmittelbarer Nähe.
Ausreichend öffentliche Parkplätze gegenüber dem Haus. Angrenzende Hotelanlage im Haus.
Ausstattung: Weiße Isolierglaskunststofffenster und Tür zum Westbalkon, Liftanlage, Generalschlüssel.
Die monatlichen Nebenkosten betragen inkl. Mitbenutzung der Einrichtungen ca. 457,42 EUR.
Das Ferienappartement kann durch eine Mietverwaltung vermietet werden und hat einen täglichen Ertrag von bis zu ca. 100 EUR, je nach Saison.
Zentralheizung, fossil. Gute Internetverbindung.
Energiebedarfsausweis vom 09.03.2024. Energiebedarfskennwert: 135,8 kWh/(m²a), inkl. Warmwasser. Baujahr 1972. Baujahr Wärmeerzeuger 1972. Energieeffizienzklasse E.
Kaufpreis / Finanzierung:
Der Kaufpreis beträgt 69.000,– EUR.
Durch unsere kompetenten Finanzdienstleister sind Finanzierungen auch ohne Eigenkapital möglich. Wir vereinbaren gerne für Sie ein unverbindliches Beratungsgespräch um eine individuelle Finanzierung für Sie erstellen zu lassen.
Vermittlungs- und Nachweisgebühr – Bedingungen:
Unsere Vermittlungs- bzw. Nachweisgebühr beträgt 3,57 % inkl. der gesetzlichen Mehrwertsteuer aus dem Kaufpreis. Ein provisionspflichtiger Maklervertrag mit dem Verkäufer ist abgeschlossen. Diesem Angebot liegen unsere „Allgemeinen Geschäftsbedingungen“ zugrunde. Irrtum und Zwischenverkauf bleiben vorbehalten.













































































